Класс ЖК
Комфорт+ класс"Aitau" олицетворяет величие природы и гармонию горных пейзажей.
В переводе с казахского языка – это сочетание лунного света и горной высоты, что отражает идею совершенства и вдохновения. Казахстан славится своими горными массивами: Алатау, Тянь-Шань, Алтай, Каратау. Они вдохновляют нас на движение вперед, и мы воплотили этот дух в архитектуре Aitau.
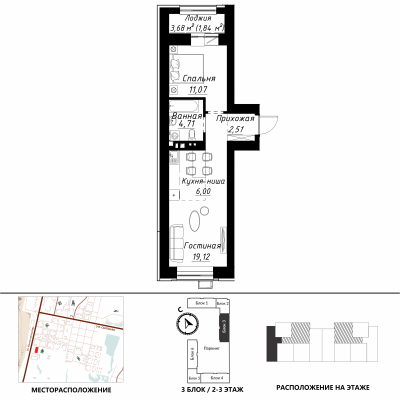
Ваша квартира
Кирпичный дом
Дворовая территория
Подробнее с жилым комплексом «AITAU» можно ознакомиться по этой ссылке: aytau-sensata.kz
ЖК "Aitau" расположен на левом берегу столицы, в районе с развитой инфраструктурой. Вокруг комплекса находятся все необходимые объекты – школы, детские сады, магазины и аптеки, медицинские учреждения и рестораны. Здесь удобство сочетается с доступностью, а городской ритм гармонирует с комфортом.
